[新築一戸建て]光市宮ノ下町|太陽光パネル+蓄電池付の平屋
最終更新日: 2026年05月15日
次回更新予定日: 2026年05月29日
次回更新予定日: 2026年05月29日
- 物件種類
- 新築住宅
- 物件所在地
- 光市宮ノ下町800番7
- 価格
- 2,860 万円
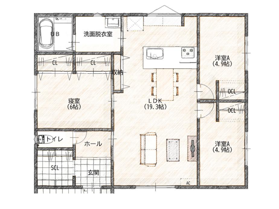
- 間取り
- 3LDK
- 土地面積
- 191.61㎡(57.96坪)
- 建物面積
- 81.98㎡(24.79坪)
360°VIEW
PHOTO GALLERY
POINT
光市宮ノ下に完成した新築平家建ての住まいです。
19帖の広々LDKは勾配天井と大開口の窓でとっても開放的です。
太陽光パネル+蓄電池搭載のオール電化住宅です。
駐車スペースは3台分あり、来客時にも安心です。
LOCATION
近隣の教育施設
浅江小小学校:1.1km
浅江中学校:1.2km
浅江中学校:1.2km
近隣のお買い物施設
イオン光店:700m
ダイレックス光店:700m
コスモス光店1.0km
ダイレックス光店:700m
コスモス光店1.0km
近隣の利便施設
JA山口県光:1.7km
西京銀行虹ケ浜支店:1.6km
西京銀行虹ケ浜支店:1.6km
DETAIL
概要
- 物件種類
- 新築住宅
- 物件名
- 光市宮ノ下町新築一戸建て
- 物件所在地
- 光市宮ノ下町800番7
- 土地面積
- 191.61㎡(57.96坪)
- 建物面積
- 81.98㎡(24.79坪)
- 築年月
- 2025年12月
- 間取り
- 3LDK
- 建物構造
- 木造
- 建物階建(地上)
- 1 階
- 施工会社
- 池田建設
- 地目
- 宅地
- 都市計画
- 都市計画地域
- 用途地域
- 準工業地域
- 建ぺい率
- 60 %
- 容積率
- 200 %
- 土地権利
- 所有権
- 接道
- 南西側約5m
- 駐車場
- 3台
- 小学校
- 浅江小学校
- 中学校
- 浅江中学校
- 現状
- 空家
- 引渡し方法
- 相談
- 取引態様
- 仲介
お支払い条件
- 価格
- 2,860 万円
交通
- 路線・駅名
- JR山陽本線「光駅 出口」
- 駅からの距離
- 1.9km
- バス停
- イオン光店
- バス停まで徒歩
- 9 分
設備
- 設備
- 全室照明, オール電化, 上水道, 下水道, 浴室暖房乾燥機, シャンプードレッサー, シャワートイレ, 暖房便座, 食洗機, IHクッキングヒーター, スマートコントロールキー, 太陽光発電システム, 蓄電池
備考
- 備考
-
※景観法による規制有、都市再生特別地区
◆太陽光6.6kW+蓄電池7.4kW搭載
その他のおすすめ物件
[中古住宅]周南市大字須々万奥|5LDK一戸建て
売物件
周南市
300万円
川沿いの穏やかな住環境、ゆとりの5LDK・駐車2台可。 秘密基地のようなロフトが魅力の住まい。
[売土地]光市室積神田|閑静な住宅街の更地
売土地
光市
530万円
光市室積神田の閑静な住宅街にある更地です。
[売土地]光市木園一丁目|浅江小学校区
売土地
光市
190万円
近隣にイオン光店やコスモスがあり買い物利便性の良い立地です。
[中古戸建]周南市大字久米|約110坪の広い敷地にある築...
売物件
周南市
3,700万円
太陽光発電システム・蓄電池搭載!約110坪の広々とした敷地、豊富な収納スペースやスキップフロアがあるお家です。



















